




Plot for sale
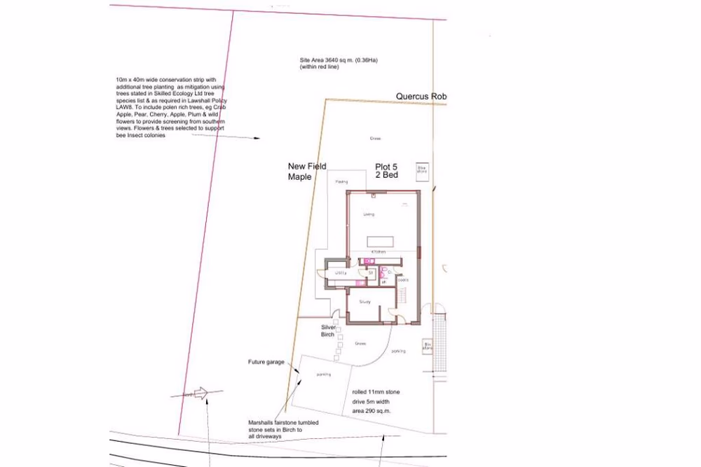
An excellent opportunity has arisen to purchase a generous building plot of approximately one-third of an acre(STS), with full planning approval (Ref: DC/24/00081) granted on 10 May 2024. The approved plans allow for the construction of an attractive two-storey barn-style dwelling of aro...
Plot for sale
Description
An excellent opportunity has arisen to purchase a generous building plot of approximately one-third of an acre(STS), with full planning approval (Ref: DC/24/00081) granted on 10 May 2024. The approved plans allow for the construction of an attractive two-storey barn-style dwelling of aro...
Contact Agent
Smart Picks — Professionals Relevant to This Land
Based on this property's key features, here are the specialists you may want to consult as part of your due diligence: land agents, rural solicitors, planning consultants and rics surveyors.

Land Agents
Essential for navigating the land market, finding buyers, and securing the best price.

Rural Solicitors
Significant investment (£250K+) requires legal expertise for conveyancing, title checks, and transaction security.

Planning Consultants
Planning-sensitive site needs expert guidance for applications and development strategy.

RICS Surveyors
Prime or productive land requires professional valuation to ensure fair market value.
Location
Blacksmith Close IP29 4QN